Sterling

 

 

Construction

Bydlení - nové stavby

 
Dům, který nabízí vlastní charakter a způsob života: snadný přístup od ulice a chráněné soukromí, prostor pro rodinný život společný i každému individuálně, propojení s venkovním prostorem, přírodou a rekreační zónou.
Dům přitom reprezentuje majitele i jeho styl.
 

Vnitřní dispozice

 

Přízemí

 

1 Zádveří                 5 Jídelna                              9 Kotelna / sklad

2 Předsíň                 6 Obývací pokoj                10 Garáž

3 Kuchyň                  7 Pracovna / Host

4 Spíž                       8 Toaleta

 

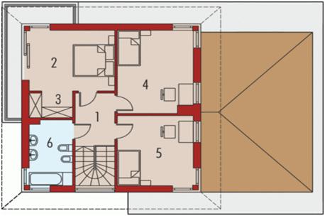
Patro

 

1 Chodba                 5 Ložnice

2 Ložnice                 6 Koupelna

3 Šatna                    

4 Ložnice

 

Základní verze tohoto domu může být upravena dle individuálních požadavků.

Bydlení - opravy a rekonstrukce

 
Pokud se zajímáte o možnost oprav nebo rekonstrukce, přejděte na další stránku